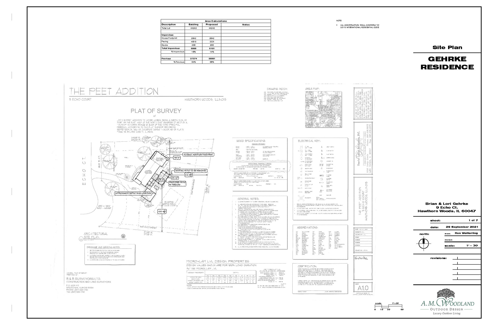
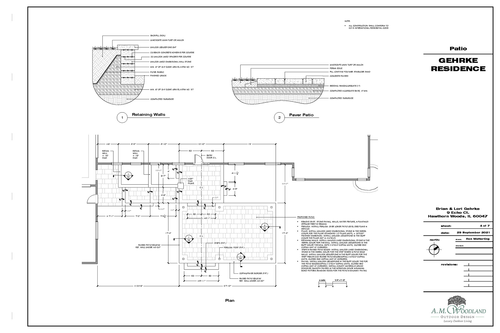
Patio and landscape design, illustration, and construction documents for a private residence located in Hawthorn Woods, IL.